Immobiliendetails
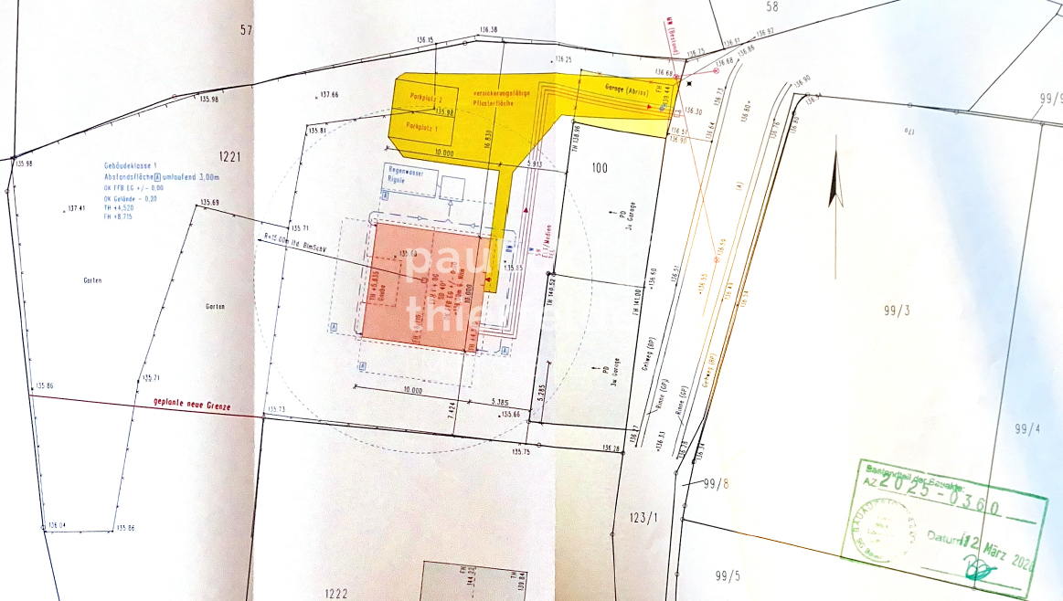
Ruhige Lage und Top-Anbindung - Baugrundstück mit Genehmigung in Lobstädt
04575 Neukieritzsch
Daten und Fakten zur Immobilie
Grundstücksfläche
ca. 1.450 m²Wohnfläche
ca. 158 m²Objektdaten
- ObjektartGrundstück
- ObjekttypWohnen
- VermarktungsartKauf
- ImmoNr01928
- Grundstücksgrößeca. 1.450 m²
- Kaufpreis119.000,00 €
- Wohnflächeca. 158 m²
- Außen-Provision7,14% inkl. ges. USt.
Kaufpreis
119.000,00 €






