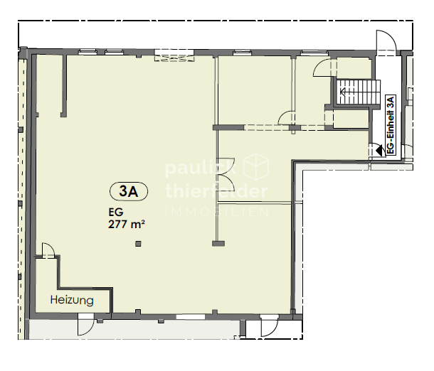
Immobiliendetails
Vielseitige Mietfläche für Büro/Lager/Werkstatt im Gewerbegebiet direkt an der B2
04129 Leipzig
Daten und Fakten zur Immobilie
Objektbeschreibung
Willkommen in Ihrem neuen Gewerbestandort in der dynamischen Stadt Leipzig: Diese vielseitige Mietfläche befindet sich in einer der aufstrebendsten Städte Deutschlands, die nicht nur für Wirtschaft und Wissenschaft ein wahrer Magnet ist. Leipzig, die größte Stadt in Sachsen, bildet zusammen mit Halle den Ballungsraum Leipzig-Halle und ist einer der wichtigsten Knotenpunkte in der Mitteldeutschland-Region.
Nutzen Sie die Chance und sichern Sie sich Ihren Platz in dieser prosperierenden Metropolregion!
Nutzen Sie die Chance und sichern Sie sich Ihren Platz in dieser prosperierenden Metropolregion!
Objektdaten
- ObjektartHallen/Lager/Produktion
- ObjekttypLagerfläche
- VermarktungsartMiete
- ImmoNr02085_3
- Anzahl Zimmer3
- Außen-Provisionkeine
Kaltmiete
Energieausweis
-
if (isset($currentEstate['energieausweistyp'])) { ?>
-
EnergieausweistypVerbrauchsausweis
} ?>
//= $currentEstate[''] ?>
// } ?>
-
Gültig bis25.08.2028
-
Baujahr1963
-
PrimärenergieträgerGas
-
Energiebedarf45 kWh/(m²a)
-
EnergieeffizienzklasseA
Lage
Das Objekt ist bequem über die Zschortauer Straße/Essener Straße erreichbar. Die infrastrukturelle Erschließung ist ausgezeichnet: Die Bundesstraße B2 führt Sie direkt ins Stadtzentrum und zur A38, während die Maximilianallee schnellen Zugang zur A14 in Richtung Halle und Dresden bietet. Die Bundesstraße B6, die in westlicher und östlicher Richtung verläuft, trägt zur hervorragenden Erreichbarkeit bei. Täglich passieren mehrere zehntausende Fahrzeuge diese bedeutende Verkehrsachse – ein Vorteil, der Ihre zukünftigen Geschäftspartner und Kunden mühelos zu Ihnen bringt.






